Vous trouverez ici toutes les pièces et dessins disponibles du 'Metabo 0190704017-10 ( BKS400-3,10WNB )'. De là, vous pouvez commander directement toutes les pièces souhaitées. De nombreuses pièces doivent être commandées auprès du fabricant, selon la marque, cela prend une à quatre semaines. Toutes les informations dont nous disposons se trouvent sur notre site Web, nous ne pouvons pas vous conseiller sur ce dont vous avez besoin, pour cela vous devrez retourner la machine pour réparation. Veuillez noter ce qui suit lors de la commande:
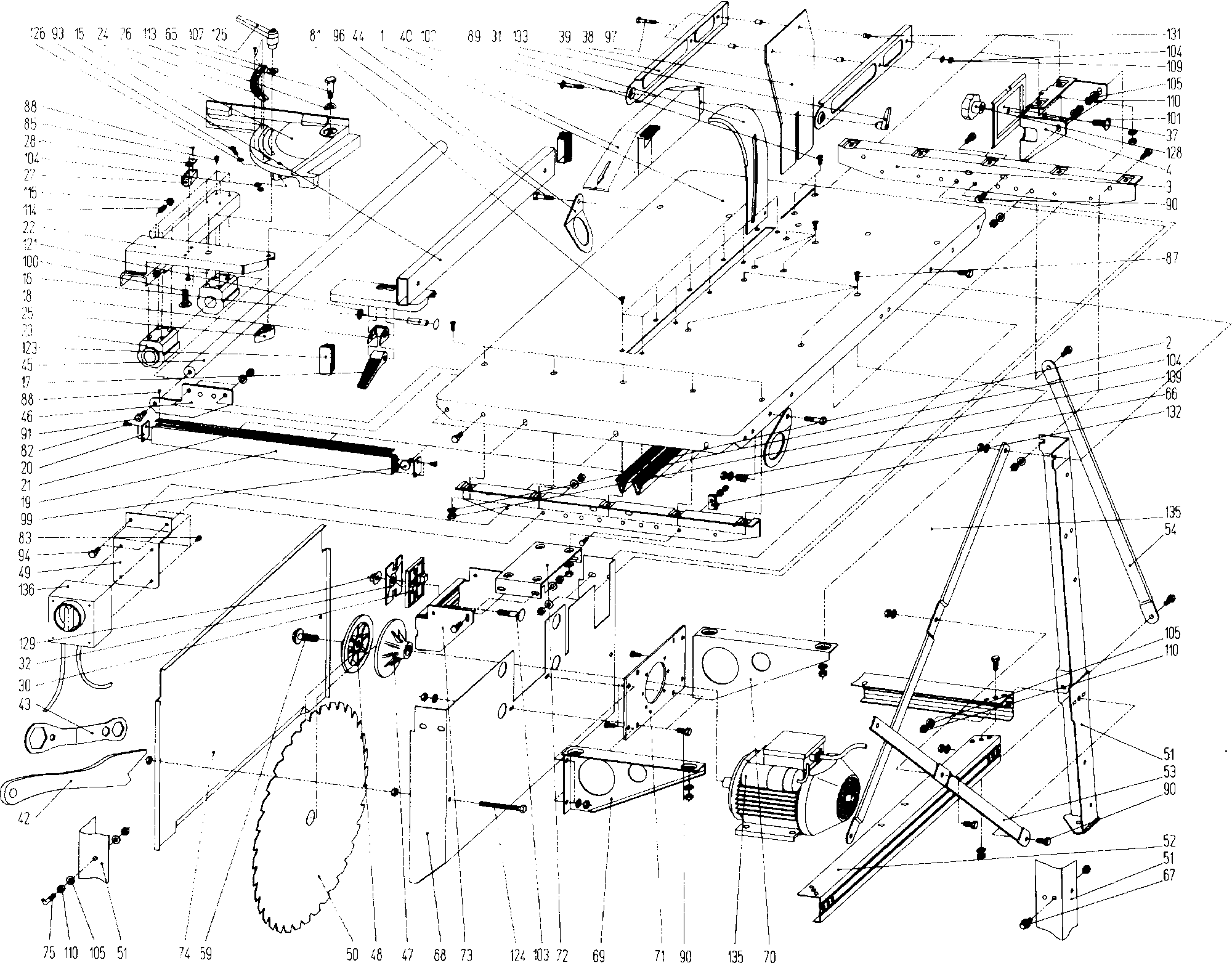
Dessins des Metabo 0190704017-10 ( BKS400-3,10WNB )
Liste de pièces de rechange des Metabo 0190704017-10 ( BKS400-3,10WNB )
| Pos. | Description | Prix hors TVA | Prix TTC | |
| Les prix affichés incluent la TVA | ||||
| Pas d'informations disponibles, non commandable | ||||
| 1 | 1382206343 | |||
| Profilé d'insert de table 549,5 ±0,3 mm | ||||
| 2 | 1393205551 | 21.64 | 25.97 | |
| TRIANGLE BL 2,50X86X656 | ||||
| 3 | 1392205035 | 11.74 | 14.09 | |
| Pas d'informations disponibles, non commandable | ||||
| 4 | 1392205108 | |||
| Pas d'informations disponibles, non commandable | ||||
| 15 | 1010208978 | |||
| BOULON AVEC TÊTE | ||||
| 16 | 6632111175 | 2.28 | 2.74 | |
| CENTRE DE SERRAGE | ||||
| 17 | 2390205484 | 7.22 | 8.66 | |
| PANNEAU DE PARTICULES ,BL 1X26X91.5 | ||||
| 18 | 1392205620 | 1.68 | 2.02 | |
| Pas d'informations disponibles, non commandable | ||||
| 19 | 1383206460 | |||
| PIÈCE D'EXTRÉMITÉ GUIDE. BL 2X26X35 | ||||
| 20 | 1492091649 | 5.87 | 7.04 | |
| Pas d'informations disponibles, non commandable | ||||
| 21 | 1142206451 | |||
| GUIDE ANGULAIRE | ||||
| 22 | 2010200922 | 43.15 | 51.78 | |
| PIÈCE DE GUIDAGE | ||||
| 23 | 2391205283 | 7.22 | 8.66 | |
| Pas d'informations disponibles, non commandable | ||||
| 24 | 1390205739 | |||
| Pas d'informations disponibles, non commandable | ||||
| 25 | 1010017587 | |||
| Gauge d'angle | ||||
| 26 | 1110205593 | 11.74 | 14.09 | |
| SUPPORT ÉCHELLE VERNIER | ||||
| 27 | 2391205615 | 2.28 | 2.74 | |
| Échelle Vernier 1.00 | ||||
| 28 | 1110205607 | 18.80 | 22.56 | |
| Porte-cales d'espace CS 70 ET-BG | ||||
| 30 | 2380075353 | 10.38 | 12.46 | |
| Pas d'informations disponibles, non commandable | ||||
| 31 | 1392206163 | |||
| PLAQUE DE PRESSION BL 2,99X80X60 | ||||
| 32 | 1382213749 | 1.68 | 2.02 | |
| Pas d'informations disponibles, non commandable | ||||
| 37 | 1392205116 | |||
| Pas d'informations disponibles, non commandable | ||||
| 38 | 1492105062 | |||
| Pas d'informations disponibles, non commandable | ||||
| 39 | 1382641082 | |||
| Plus disponible, pas de remplacement | ||||
| 40 | 2391206204 | |||
| Tige de poussée | ||||
| 42 | 1394201630 | 7.22 | 8.66 | |
| CLE | ||||
| 43 | 1492102829 | 8.89 | 10.67 | |
| ARC DE LEVAGE 2.99X90X112 | ||||
| 44 | 1492103230 | 3.71 | 4.45 | |
| Pas d'informations disponibles, non commandable | ||||
| 45 | 1495102528 | |||
| Pas d'informations disponibles, non commandable | ||||
| 46 | 1492105054 | |||
| BRIDE RD 20 | ||||
| 47 | 1390205208 | 43.15 | 51.78 | |
| Contreflange RD 112 SW 46x26 | ||||
| 48 | 2390205247 | 21.64 | 25.97 | |
| Plaque d'interrupteur bl 1,5x108x216 z-f rmig | ||||
| 49 | 1332036064 | 7.22 | 8.66 | |
| Pas d'informations disponibles, non commandable | ||||
| 50 | 0910008846 | |||
| Pas d'informations disponibles, non commandable | ||||
| 51 | 1010641019 | |||
| SUPPORT BL 1,5X118X703 | ||||
| 52 | 1382641031 | 16.25 | 19.50 | |
| SUPPORT DIAGONAL BL 2,5X30X830 | ||||
| 53 | 1382641058 | 18.80 | 22.56 | |
| SUPPORT DIAGONAL BL 2,5X30X591 | ||||
| 54 | 1382641074 | 8.89 | 10.67 | |
| Zeskantschroef | ||||
| 59 | 141122670 | 4.51 | 5.41 | |
| BOULON D'AJUSTEMENT SW 19X42 | ||||
| 65 | 1395205400 | 48.48 | 58.18 | |
| Ressort de compression | ||||
| 66 | 7051207240 | 1.55 | 1.86 | |
| Vis 6KT 17x30 M 8 | ||||
| 67 | 1395205516 | 3.02 | 3.62 | |
| BOÎTIER DE COPEAUX BL 1,5X812X410 | ||||
| 68 | 1382206319 | 37.65 | 45.18 | |
| PLAQUE DE SUPPORT BL 2X321X168 ARRIÈRE | ||||
| 69 | 1382206335 | 12.23 | 14.68 | |
| PLATINE DE SUPPORT BL 2X321X168 AVANT | ||||
| 70 | 1382206300 | 12.23 | 14.68 | |
| Support de moteur BL 2.99X134X230 | ||||
| 71 | 1482206294 | 8.89 | 10.67 | |
| SUPPORT BL 2,5X195X100 | ||||
| 72 | 1382206289 | 3.71 | 4.45 | |
| Pas d'informations disponibles, non commandable | ||||
| 73 | 1382206270 | |||
| COUVERCLE DU BOÎTIER DE COPEAUX BL 1,5X684X391 | ||||
| 74 | 1382206327 | 60.59 | 72.71 | |
| Pas d'informations disponibles, non commandable | ||||
| 75 | 141114020 | |||
| Vis a tete fraisee | ||||
| 81 | 141123420 | 1.56 | 1.87 | |
| Vis de positionnement M. Tête cruciforme | ||||
| 82 | 6172015687 | 1.56 | 1.87 | |
| Vis a tete fraisee | ||||
| 83 | 141123420 | 1.56 | 1.87 | |
| Pas d'informations disponibles, non commandable | ||||
| 85 | 141122870 | |||
| Pas d'informations disponibles, non commandable | ||||
| 87 | 6131009460 | |||
| Vis à tête fraisée | ||||
| 88 | 6172091014 | 1.56 | 1.87 | |
| VIS À TÊTE FRAISÉE M.CROIX M 6X16 VE | ||||
| 89 | 6131047582 | 1.56 | 1.87 | |
| Vis hexagonale | ||||
| 90 | 6103001178 | 1.56 | 1.87 | |
| Zeskantschroef | ||||
| 91 | 141114860 | 1.68 | 2.02 | |
| Zeskantschroef | ||||
| 93 | 141110290 | 1.68 | 2.02 | |
| Zeskantschroef | ||||
| 94 | 141113290 | 1.56 | 1.87 | |
| Zeskantschroef | ||||
| 96 | 141113330 | 1.68 | 2.02 | |
| Vis hexagonale | ||||
| 97 | 141110090 | 1.67 | 2.00 | |
| BOULON À CHOIX AVEC INSERTION CARRÉE M 8X25 VERZ | ||||
| 99 | 6110000640 | 1.56 | 1.87 | |
| BOULON À TÊTE CARRÉE M 10X30 END | ||||
| 100 | 6110091603 | 1.56 | 1.87 | |
| Pas d'informations disponibles, non commandable | ||||
| 101 | 6110085743 | |||
| BOULON À CHOIX AVEC INSERTION CARRÉE M 6X45 VERZ | ||||
| 102 | 6110000624 | 1.56 | 1.87 | |
| Boulon de serrure avec insert carré M 12X40 VER | ||||
| 103 | 6110149253 | 1.68 | 2.02 | |
| Rondelle | ||||
| 104 | 141151940 | 1.56 | 1.87 | |
| Pas d'informations disponibles, non commandable | ||||
| 105 | 6305002486 | |||
| Rondelle | ||||
| 107 | 141150050 | 1.56 | 1.87 | |
| Ecrou de sécurité hexagonal | ||||
| 109 | 141130650 | 1.68 | 2.02 | |
| Écrou hexagonal auto-bloquant | ||||
| 110 | 6202002305 | 1.56 | 1.87 | |
| Rondelle élastique B 12 VERZ. | ||||
| 113 | 6302085941 | 1.56 | 1.87 | |
| Vis de réglage | ||||
| 114 | 6161029309 | 1.56 | 1.87 | |
| Ecrou hexagonal plat | ||||
| 115 | 6205029131 | 1.56 | 1.87 | |
| Pas d'informations disponibles, non commandable | ||||
| 121 | 7016107721 | |||
| BOULON À FENTE 60X25 NOIR | ||||
| 123 | 1391019971 | 1.68 | 2.02 | |
| VIS À TÊTE HEXAGONALE M 8X85 GALV. | ||||
| 124 | 6103122986 | 1.68 | 2.02 | |
| Levier de serrage avec filetage interne M 10 IG 18 | ||||
| 125 | 7006073730 | 10.38 | 12.46 | |
| Zeskante moer | ||||
| 126 | 141130100 | 1.56 | 1.87 | |
| ÉCROU À POIGNÉE M 10 / RD 63 ZINGUÉ | ||||
| 128 | 7000074122 | 3.02 | 3.62 | |
| Écrou | ||||
| 129 | 6209002432 | 4.51 | 5.41 | |
| Entretoises | ||||
| 131 | 6442059304 | 1.56 | 1.87 | |
| Collier de fixation | ||||
| 132 | 8242051328 | 2.28 | 2.74 | |
| Levier de mandrin OSC 18 | ||||
| 133 | 7006072385 | 5.87 | 7.04 | |
| Pas d'informations disponibles, non commandable | ||||
| 135 | 8012045817 | |||
| Pas d'informations disponibles, non commandable | ||||
| 136 | 8131084839 | |||